
En la cabecera del río Granadilla, en Moclinejo, se encuentran los lagares de Cela Bajo y Alto, conocidos como Cela Vieja y Nueva, construidos en las tierras de la antigua alquería de Çalim. Tras el reparto de sus tierras a los nuevos pobladores castellanos, el lugar fue roturado de forma intensiva para la siembra de viñedos y tierras de labranza, siendo Juan Matheos uno de los primeros propietarios documentados en la zona.
La heredad de Cela inicia el siglo XVII en manos de los herederos del mencionado Juan Matheos, estos son Francisco Rodríguez Matheos, Alonso Rodríguez Matheos y Sebastián Matheos, los cuales disfrutarán las viñas y tierras junto a la casa, lagar y vasija. Resulta de interés por la información que arroja el censo existente en el año 1614 sobre la casa, lagar y vasija de Cela, donde se reconocen 50.000 cepas de viña, e incluso un censo sobre la viña de la Mora en el mismo pago de Cela. Este dato nos indica que ya a comienzos del siglo XVII el partido de Cela ya estaba sembrado intensamente de viñas.
En 1673 nacería Esteban Alonso Guerrero Matheos, futuro I Marqués de Cela. Bajo su gestión, las tierras de Cela abarcaban 112 hectáreas con viñedos, huertos, una parcela de secano, ermita, estanques y dos casas, posiblemente denominadas Cela Bajo o Vieja y Cela Alto o Nueva. El I Marqués se casó en terceras nupcias con Catalina Chacón de Hinestrosa, lo que resultaría que la herencia y mayorazgo pasará en 1742 a los Villalcázar, rama Chacón-Santiesteban, de Antequera.
«El lugar fue roturado de forma intensiva para la siembra de viñedos y tierras de labranza…»
Lagares y Cortijos
En este periodo, las Respuestas Particulares del Catastro de Ensenada menciona la finca de Cela la Nueva, que se compondría por una casa de campo con cuarto bajo, dos salas, cocina, bodega, 44 tinajas con un total de 6.000 @ de capacidad. También una caballeriza, pajar y un lagar sin prensa de viga. También se menciona un molino de aceite. Además, el mayorazgo de Cela contaba con una parcela de regadío regada con agua de “pie” con dos celemines de primera calidad, con 19 naranjos, 18 morales, 5 álamos, y 3 duraznos, seguían las propiedades con doce fanegas de secano de segunda y tercera calidad, que producía una cosecha de trigo o cebada al año, siendo necesarios dos de descanso, además de otros cultivos de secanos como 50 olivos y 150 almendros crecidos y plantones. Finalmente, 120 obradas de viñas de secano, de primera, segunda y tercera calidad. A todo ello hay que sumarle un interesante listado de casas y tiendas en la ciudad, pero que aquí no vienen al caso. Esta descripción muestra una explotación agrícola donde el aceite, el grano y la almendra ocupaban un puesto tan importante como el vino.


En este mismo documento, el lagar de Cela de Abajo o Vieja aparece descrito como un edificio con salas altas, prensa de vigas y 43 tinajas con 2000 @ de capacidad, también una pequeña huerta de naranjos chinos, naranjos agrios y limones, 70 fanegas de secano, otra pieza de tierra con olivos, higueras, almendros, alcornoques, nogales, perales, limones y naranjos. En cuanto a viñas, contaba con 100 obradas de primera, segunda y tercera calidad.
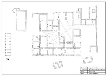
El lagar de Cela Alto o Nuevo se ubica en una posición destacada en la cabecera del río Granadilla, aprovechando una terraza a 420 metros de altura, con vistas al cerro de Bezmiliana y al mar Mediterráneo. A lo largo del tiempo, su estructura original ha experimentado alteraciones significativas, especialmente desde el siglo XIX. Aunque inicialmente constaba de cuatro naves de una sola altura, distribuidas en una planta rectangular con un patio central, las modificaciones han dificultado la identificación precisa de sus usos originales. El análisis se complica por el colapso de algunas áreas y la pérdida de detalles tras demoliciones en el siglo XIX o principios del XX.
«El mayorazgo de Cela contaba con una parcela de regadío regada con agua de “pie”
Lagares y Cortijos

Los materiales de construcción incluyen mampostería de pizarra, ladrillos, adobes y suelos de mazaríes. La presencia de pinturas murales barrocas y tardobarrocas, imitando sillares y ladrillos, es un rasgo distintivo. Aunque el estado de conservación es precario debido a diversos factores como la humedad y el estabulado de ganado, estas pinturas, datadas probablemente en el siglo XVIII, revelan una rica tradición ornamental compartida con otras regiones, especialmente Sevilla. La presencia de decoraciones en los arcos del acceso al patio, con motivos de racimos de uva y figuras humanas, sugiere una simbología de abundancia y poder del propietario.

A pesar del deterioro acelerado, se destaca la necesidad urgente de un estudio detallado para comprender mejor el programa decorativo original y una intervención cuidadosa para preservar este elemento patrimonial vinculado a la vitivinicultura de Málaga.
